Фасадная система Doksal DVF-31(2) Econom под HPL – панели

  • Описание системы
  • Документация к системе
  • Фотографии + чертежи + узлы
  • Комплектующие
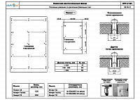
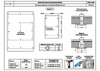
Вентилируемые фасады системы DOKSAL предназначены для облицовки фасадов зданий и других строительных сооружений декоративным материалом и утепления стен с наружной стороны в соответствии с требованиями действующих норм по тепловой защите зданий.

Конструкции применяются для устройства навесных фасадных систем вновь строящихся и реконструируемых зданий и сооружений различных уровней ответственности, всех степеней огнестойкости и классов функциональной и конструктивной пожарной опасности по СНиП 21-01-97.

Серия DVF-31(2) предназначена для крепления HPL панелей со скрытым креплением.

Вариант Econom. Экономичный вариант навесных вентфасадов. Кронштейны крепятся в несущие стены зданий.

deac5b653e2780613992ff4ac60046d1
deac5b653e2780613992ff4ac60046d1
bede7d1cf552c6d12dfc89a5c9cf0fd8
bede7d1cf552c6d12dfc89a5c9cf0fd8
396577b00dc52e6c1e57e6525f5b4fa9
396577b00dc52e6c1e57e6525f5b4fa9
49a6582c440fa7a0f9331777318fb6a9
49a6582c440fa7a0f9331777318fb6a9
77c7e0515a2a4e7dd33cffbf1d2a0e4b
77c7e0515a2a4e7dd33cffbf1d2a0e4b
13dedfbf544fe3bf2bbf3cc4bcf23308
13dedfbf544fe3bf2bbf3cc4bcf23308
31efd7d9fdf2039451311401b20389ab
31efd7d9fdf2039451311401b20389ab
360c0e493a943697c21ef979616c1e7e
360c0e493a943697c21ef979616c1e7e
dfb588e544fc0c91acbd3b74c513771e
dfb588e544fc0c91acbd3b74c513771e
de8449aa114a78bc950f0da671ffdc69
de8449aa114a78bc950f0da671ffdc69
29d07dca059a1127fbea88d543c35a26
29d07dca059a1127fbea88d543c35a26
fdbdc5eee9df166510a8bb45745c999e
fdbdc5eee9df166510a8bb45745c999e
Закладные детали
Фото Наименование Артикул Единица измерения Цена (руб.)
Соединитель Н 100 шт. 101,00
Соединитель Н 80 шт. 84,00
Соединитель Н шт. 53,00
Закладная НТ 80 шт. 54,00
Закладная НТ шт. 36,00

Подняться к карте разделов

Кляммера для видимого крепления керамогранитной плитки
Фото Наименование Артикул Единица измерения Цена (руб.)
Кляммер одинарный 10-13мм AISI 430 1,2мм шт. 10,00
Кляммер одинарный 10-13мм AISI 430 1,0мм шт. 9,00
Кляммер одинарный 10-13мм AISI 201 1,2мм шт. 11,00
Кляммер универсальный 8-10мм AISI 430 1,2мм шт. 25,00
Кляммер универсальный 8-10мм AISI 430 1,0мм шт. 22,00
Кляммер универсальный 8-10мм AISI 201 1,2мм шт. 27,00
Кляммер угловой 8-10мм AISI 430 1,0мм шт. 13,00
Кляммер угловой 8-10мм AISI 201 1,2мм шт. 19,00
Кляммер угловой 10-13мм AISI 430 1,2мм шт. 15,00
Кляммер угловой 10-13мм AISI 430 1,0мм шт. 13,00
Кляммер угловой 10-13мм AISI 201 1,2мм шт. 19,00
Кляммер стартовый 8-10мм AISI 430 1,0мм шт. 14,00
Кляммер стартовый 8-10мм AISI 201 1,2мм шт. 18,00
Кляммер стартовый 10-13мм AISI 430 1,2мм шт. 16,00
Кляммер стартовый 10-13мм AISI 430 1,0мм шт. 14,00
Кляммер стартовый 10-13мм AISI 201 1,2мм шт. 18,00
Кляммер рядовой 8-10мм AISI 430 1,0мм шт. 21,00
Кляммер рядовой 8-10мм AISI 201 1,2мм шт. 29,00
Кляммер рядовой 10-13мм AISI 430 1,2мм шт. 24,00
Кляммер рядовой 10-13мм AISI 430 1,0мм шт. 21,00
Кляммер рядовой 10-13мм AISI 201 1,2мм шт. 29,00

Подняться к карте разделов

Комплектующие для крепления металлокассет
Фото Наименование Артикул Единица измерения Цена (руб.)
Уголок соединительный шт. 9,00
Компенсатор шт. 15,00
Пластина соединительная шт. 4,00
Икля правая шт. 10,00
Икля левая шт. 10,00
Зацеп шт. 8,00
Салазка Т2 под икли шт. 25,00
Салазка со втулкой и винтом шт. 60,00
Салазка под зацеп с винтом шт. 34,00
Салазка под зацеп с винтом шт. 54,00

Подняться к карте разделов

Комплектующие для крепления терракоты и скрытого крепления керамогранита

Подняться к карте разделов

Крепёж

Подняться к карте разделов

Кронштейны
Фото Наименование Артикул Единица измерения Цена (руб.)
Кронштейн MX 60x275 шт. 269,00
Кронштейн TM шт. 34,00
Кронштейн TL шт. 58,00
Кронштейн HM 220 шт. 243,00
Кронштейн HM 150 шт. 220,00
Кронштейн HL 220 шт. 453,00
Кронштейн HL 150 шт. 409,00
Кронштейн US 240 шт. 156,00
Кронштейн US 220 шт. 133,00
Кронштейн US 190 шт. 126,00
Кронштейн US 170 шт. 115,00
Кронштейн US 150 шт. 94,00
Кронштейн US 120 шт. 87,00
Кронштейн US 80 шт. 70,00
Кронштейн UM 240 шт. 206,00
Кронштейн UM 220 шт. 174,00
Кронштейн UM 190 шт. 165,00
Кронштейн UM 170 шт. 151,00
Кронштейн UM 150 шт. 123,00
Кронштейн UM 120 шт. 113,00
Кронштейн UM 80 шт. 90,00
Кронштейн UL 240 шт. 382,00
Кронштейн UL 220 шт. 320,00
Кронштейн UL 190 шт. 303,00
Кронштейн UL 170 шт. 278,00
Кронштейн UL 150 шт. 223,00
Кронштейн UL 120 шт. 203,00
Кронштейн UL 80 шт. 158,00
Кронштейн LX 60x275 шт. 467,00
Кронштейн S 60x240 шт. 87,00
Кронштейн S 60x220 шт. 69,00
Кронштейн S 60x190 шт. 61,00
Кронштейн S 60x170 шт. 53,00
Кронштейн S 60x150 шт. 48,00
Кронштейн S 60x120 шт. 41,00
Кронштейн S 40x150 шт. 41,00
Кронштейн S 40x120 шт. 36,00
Кронштейн S 40x100 шт. 33,00
Кронштейн S 40x80 шт. 30,00
Кронштейн S 40x80x2 шт. 25,00
Кронштейн S 40x60 шт. 26,00
Кронштейн M 60x240 шт. 117,00
Кронштейн M 60x220 шт. 92,00
Кронштейн M 60x190 шт. 81,00
Кронштейн M 60x170 шт. 69,00
Кронштейн M 60x150 шт. 62,00
Кронштейн M 60x120 шт. 53,00
Кронштейн M 40x150 шт. 53,00
Кронштейн M 40x120 шт. 46,00
Кронштейн M 40x100 шт. 41,00
Кронштейн M 40x80 шт. 37,00
Кронштейн M 40x80x2 шт. 31,00
Кронштейн M 40x60 шт. 32,00
Кронштейн D 60x240 шт. 162,00
Кронштейн D 60x220 шт. 126,00
Кронштейн D 60x190 шт. 111,00
Кронштейн D 60x170 шт. 96,00
Кронштейн D 60x150 шт. 86,00
Кронштейн D 60x120 шт. 73,00
Кронштейн D 40x150 шт. 73,00
Кронштейн D 40x120 шт. 62,00
Кронштейн D 40x100 шт. 56,00
Кронштейн D 40x80 шт. 50,00
Кронштейн D 40x60 шт. 43,00
Кронштейн L 60x240 шт. 219,00
Кронштейн L 60x220 шт. 171,00
Кронштейн L 60x190 шт. 149,00
Кронштейн L 60x170 шт. 130,00
Кронштейн L 60x150 шт. 116,00
Кронштейн L 60x120 шт. 98,00
Кронштейн L 40x150 шт. 99,00
Кронштейн L 40x120 шт. 84,00
Кронштейн L 40x100 шт. 75,00
Кронштейн L 40x80 шт. 67,00
Кронштейн L 40x80x2 шт. 56,00
Кронштейн L 40x60 шт. 57,00

Подняться к карте разделов

Термоизоляторы
Фото Наименование Артикул Единица измерения Цена (руб.)
Термоизолятор HM шт. 19,00
Термоизолятор HL шт. 35,00
Термоизолятор M 60 шт. 9,00
Термоизолятор L 60 шт. 15,00

Подняться к карте разделов

Удлинители
Фото Наименование Артикул Единица измерения Цена (руб.)
Удлинитель SD шт. 46,00
Удлинитель SM шт. 34,00
Удлинитель SL шт. 61,00
Удлинитель UM шт. 82,00
Удлинитель UL шт. 146,00
Удлинитель M 400 шт. 138,00
Удлинитель L 400 шт. 236,00
Удлинитель M 110 шт. 41,00
Удлинитель L 110 шт. 76,00

Подняться к карте разделов

Уплотнители
Фото Наименование Артикул Единица измерения Цена (руб.)
Уплотнитель узкий 36 мм (м.п.) шт. 16,00
Уплотнитель широкий 56 мм (м.п.) шт. 21,00

Подняться к карте разделов

Профили вспомогательные и декоративные

Подняться к карте разделов

Профили направляющие
Фото Наименование Артикул Единица измерения Цена (руб.)
Т-профиль 100х80х2 п. м. 553,00
H-профиль 100х45х1,6 п. м. 337,00
H-профиль 100x85x2,2 п. м. 721,00
H-профиль 100x50x2,2 п. м. 550,00
Т-профиль 60х80х2 п. м. 488,00
H-профиль 60х45х1,6 п. м. 274,00
H-профиль 60х105х1,5 п. м.
H-профиль 60х105х2,2 п. м. 716,00
H-профиль 60х95х1,5 п. м.
H-профиль 60х95х2,2 п. м.
H-профиль 60х85х1,5 п. м. 473,00
H-профиль 60х85х2,2 п. м. 667,00
H-профиль 60х50х1,5 п. м. 355,00
H-профиль 60х50х2,2 п. м. 503,00
Т-профиль 60х35х1,3 п. м. 140,00
Y-профиль 75х70х1,8 п. м. 274,00
Т-профиль 56х44х1,2 п. м. 136,00
Т-профиль 100х54х1,8 п. м. 259,00
Y-профиль 60х60х1,8 п. м. 220,00
Т-профиль 60х60х1,8 п. м. 204,00
Т-профиль 60х80х2,2 п. м. 269,00
L-профиль 38х54х1,7 п. м. 145,00
Т-профиль 70х50х1,6 п. м. 170,00

Подняться к карте разделов

Профили соединительные для композитных панелей

Подняться к карте разделов

Для вас предусмотрена скидка от базовых цен!
Отправить заявку

Другие фасадные системы под
HPL – панели

Заказать расчёт сметы. БЕСПЛАТНО!